GALLEON 2
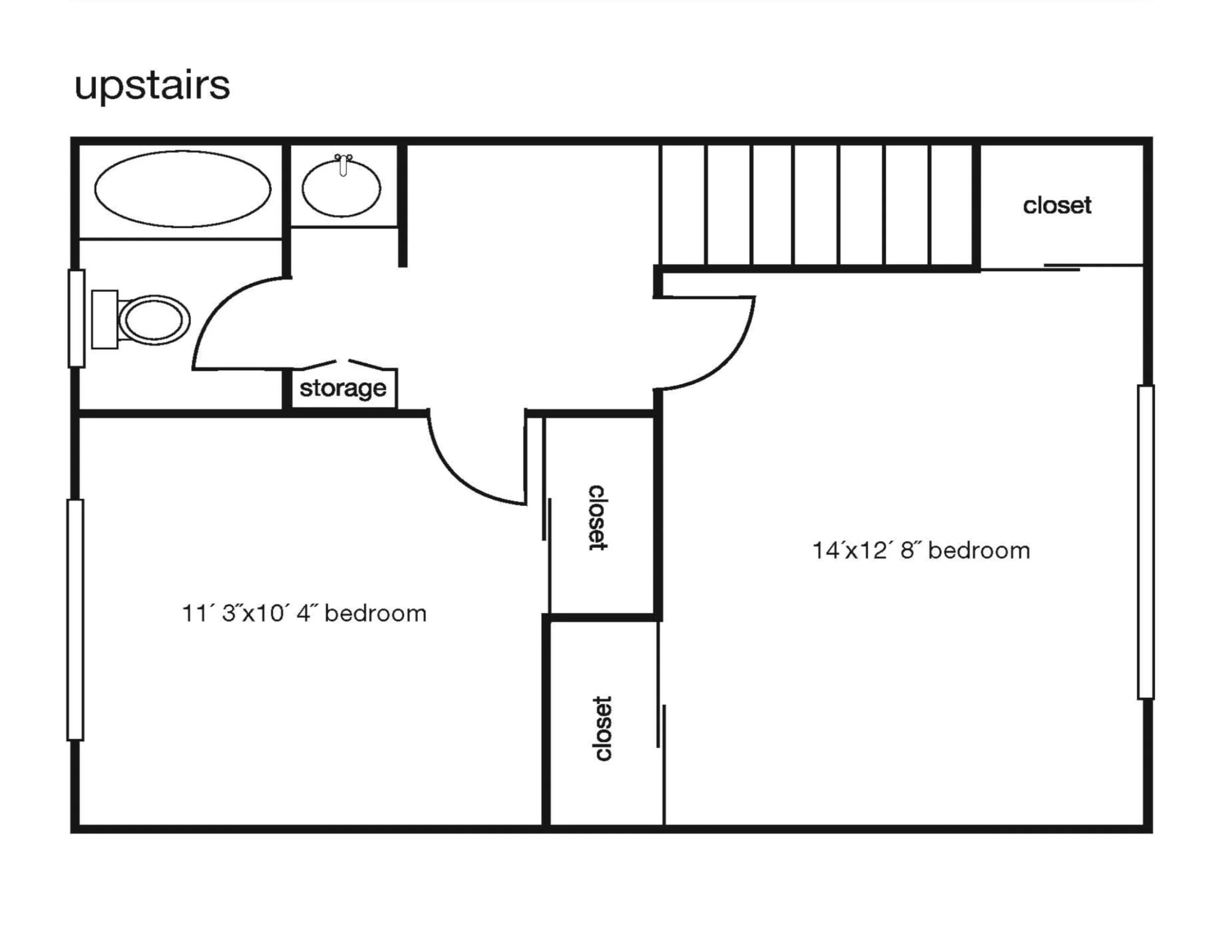
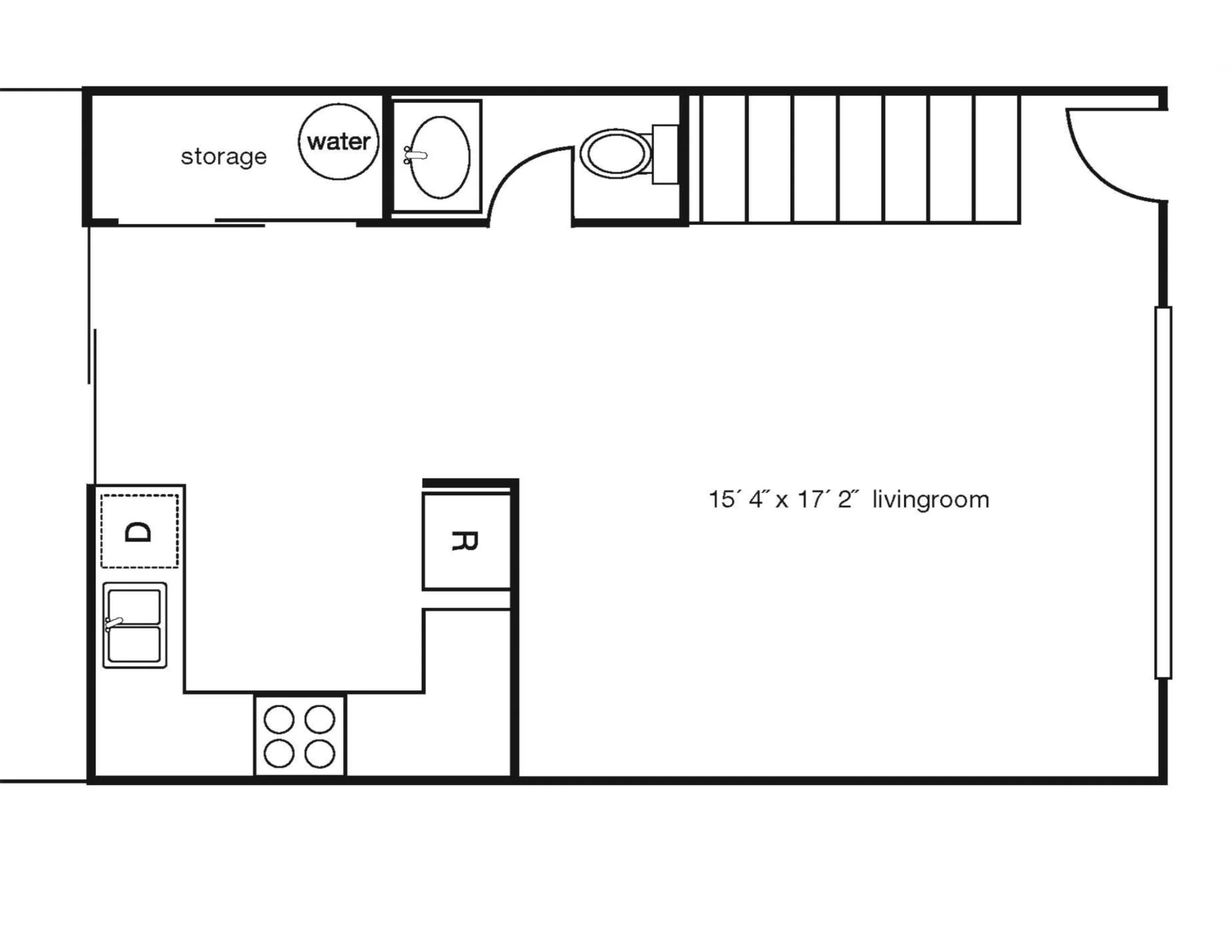
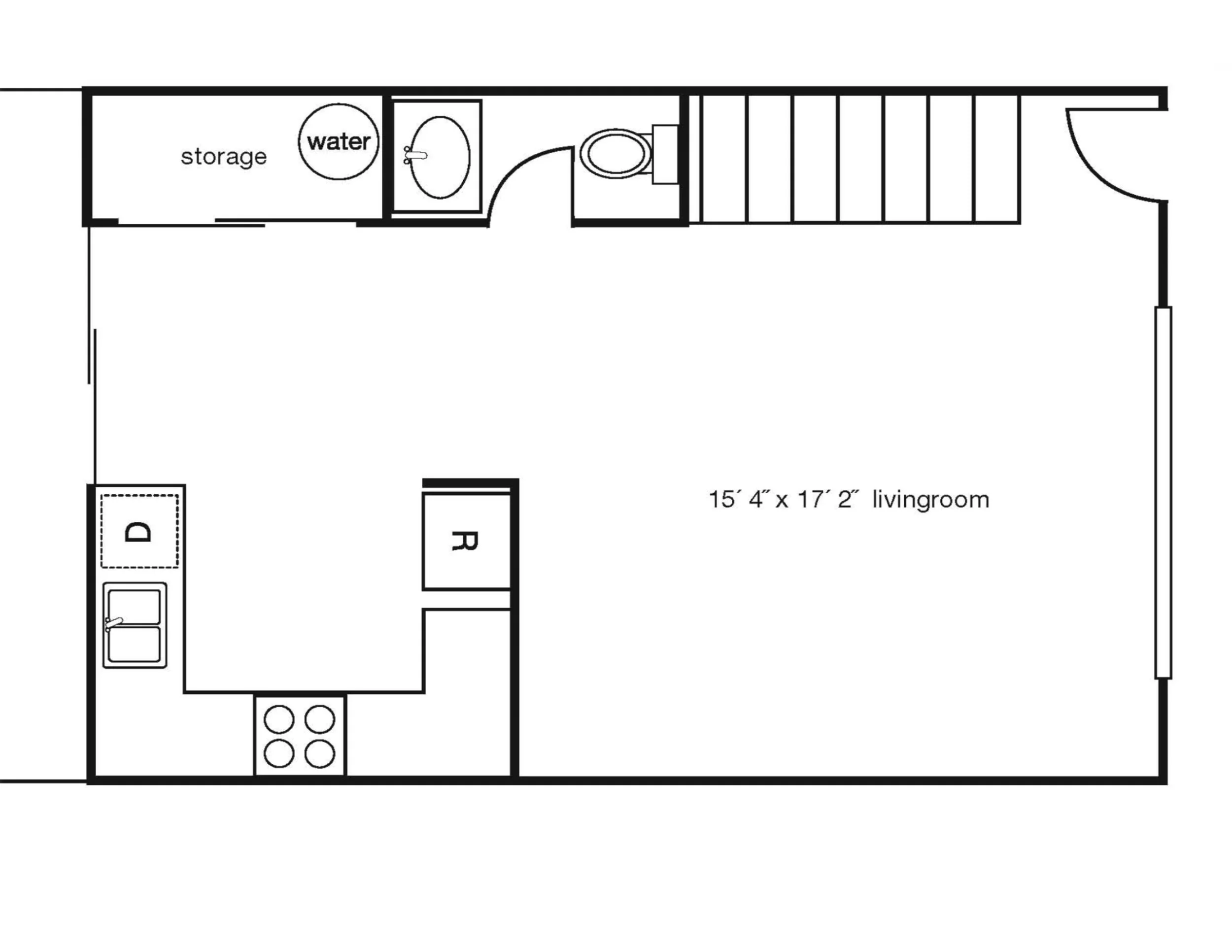
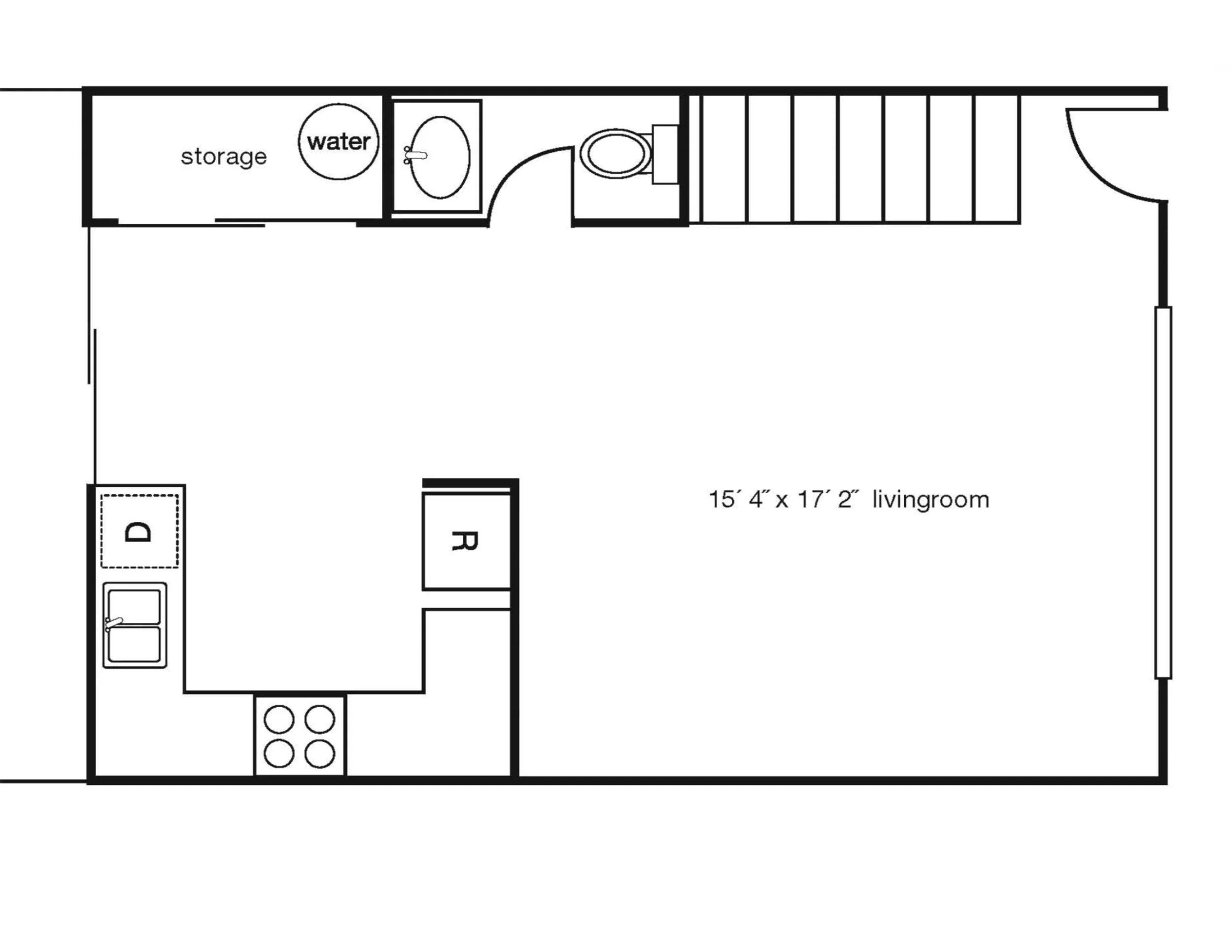
This large 1,010 square foot townhouse located in a quiet, less densely populated part of San Luis Obispo’s desirable Laguna Lake neighborhood. The area offers a peaceful residential feel with convenient access to shopping, parks, and public transportation.
The unit features two bedrooms and one and a half bathrooms, with tasteful upgrades throughout. The kitchen includes newer granite countertops, a classic subway tile backsplash, a refrigerator, dishwasher, microwave, and garbage disposal. The spacious primary bedroom offers two large closets, and there is a small fenced outdoor area where you can sit and relax. Two free assigned off-street parking spots are included, and there is a coin-operated laundry room on site for resident use. Water, trash, and yard maintenance are included in the rent, and the property is located near a city bus line for easy commuting.
Some of the units are available furnished. The furnished apartments include beds, desks, dining and living room furniture, tables, and lamps. Tenants must provide their own linens, kitchenware, cleaning supplies, décor, and television.
The lease term is twelve months, with a maximum of four occupants per unit. No pets and no smoking are allowed. Parties are not permitted, and tenants must be respectful of their neighbors. The security deposit is equal to one month’s rent. Tenants are responsible for electricity and optional internet or cable services.
Applicants must have a minimum credit score of 680 and verifiable monthly income equal to at least two and a half times the rent. Cosigners are accepted for college students without established credit.
This townhouse is ideal for those seeking a clean, comfortable home in a peaceful, convenient location in San Luis Obispo.




